Open Nature’s Window With This Greenery-Surrounded Vietnamese Home

Get closer to true outdoor living. This green-inspired home, nicknamed ‘The Drawers House’, was concepted by MIA Design Studio to let the outdoors in. Based in Vung Tau, Vietnam, it uses 60% of its 470sqm purely for landscape. Rooms behave like ‘drawers’, sliding in and out between alternating pockets of garden, pools and natural vistas. Facing in the same direction, each drawer shows a space interspersed by nature – rooms where nature controls the atmosphere, providing brightness, shade, light patterns and cool at its surrounding fauna’s whim. Take a tour through its connecting hallway to see its many pockets for yourself.



Our first view invites with an open plan space decked with pools, tiled patios and an abundance of greenery. Two wooden doors frame either side of a wide glass panel, the perfect place to gaze out to the leafy surrounds. Taking turns, the pool and glass reflect living nature.




Looking diagonally, wide sheets of plaster create a dividing wall and patio shelter, seemingly matching with the floor tiling. Two trees make friends in a central pool planting, providing shade for its school of fish.




Wooden elements continue the nature-inspired theme, as varnished wooden doors melt into timber Venetians. Greenery lines the surfaces, making itself known in planted hedges and moss around the pool. Bridal veil creepers take hold of the exterior walls.




The interior creates warmth with more wooden features. Polished coffee tables set a foreground for a full-panelled wooden kitchen and dining table. Perfectly matching the frames of the doors, their dark timber hues are given respite by a modern sofa, offering a place to lie – or sit – and watch the world go by.




A perfect indoor-outdoor harmony is exhibited in the dining room. Looking from the pool, bridal veil creepers dangle in the background – and are reflected back in the pool’s sheen. The result? A symmetrical, relaxing view that would tempt the least superstitious of guests to believe in magic.




A view towards the property’s entrance shows the visitors’ first glimpse of this modern haven. Trees hover over the sides of its exterior plaster walls, matched by trimmed rows of hedges and a lone tree in its corner. Long, sleek panes of concrete tiling offer a smooth surface for the rough, rustic door. The pool and its reflections create an atmosphere of calm.




On the house wall’s inner, the kitchen’s smooth surfaces mirror the outside. Thick black supports draw lines with a horizontal hanging light, made all the brighter with inbuilt LEDs. Simple taps and basins keep the focus on the home’s layout and scenery.




From the dining area, a wall of bridal veil creepers dazzle the senses. Dining chairs backed with the lounge’s panel design help pull the space together, while wood and white cover the rest.




Centred around one central corridor, the home’s layout allows nature to shine through. Using mixed elements such as wooden slats and plaster, its design allows for dreamy walkways as its plant life interacts with several different substrates.




A small cavity between the corridor’s roofing and adjacent walls lets the sun beam through. Bridal veil creepers meet a bed of ferns amidst other plants enriched by the elements outside.




Lining its walkways with wooden slats on the one side, hanging creepers on the other, the space appears open, light and airy. Sleek white ceilings and light-coloured stone ensure the natural remains the central feature.




Stepping out of the main rooms, visitors find whole spaces drenched in green. Covering walls and masking windows, bridal veil creepers provide a partition from central living areas. Overgrown grass and ferns line the floors, while a few trees stand tall as nature’s statues in the centre.




In keeping with its exemplary indoor/outdoor flow, several interior pieces mimic the exterior design. In the bedroom, a wooden-slat standing closet references the corridor, creating one long slatted line as you peek out the window. A wooden door to the side links to the home’s frontage.




The bedroom’s desk provides a segue from outside to inside. Dark horizontal wood creates shelves and a table, turning the corridor’s wooden slats and door frames on their head. White covers the bedding, cabinetry and air conditioning, providing a muted décor and a place to relax. A few biblical figures up the top of the shelving provide personality.




Shunning traditional walls for a full-scale window, the bathroom only partially obscures the view with two long, elegant mirrors. Two squared sinks mirror those in the kitchen, while a Jenga-style standing cabinet mimics a tree log in form. A line of natural stones behind offers a finishing touch.




From its street front, the home looks modern and spacious, hiding the secret of its natural haven. A leafy tree at the end matches the colours of its creepers.




Looking front on, the home’s design reveals its treasures. A plaster wall doubling as a gate alongside timber sliding doors provides privacy for the nature-loving city-dweller.




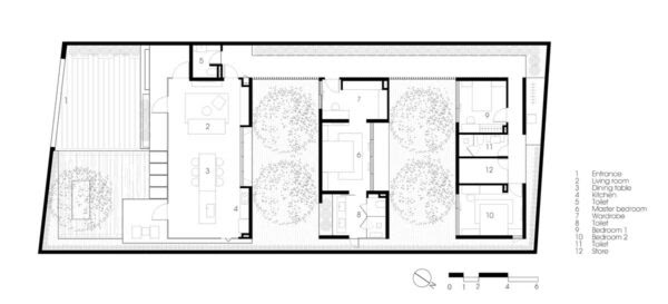
Check out our plans above and below, for a more detailed insight into how the home works. These plans show how the home naturally ventilates, is laid out in a floor plan, how nature intersperses the rooms, and how its 470sqm space is divided.






Recommended Reading: Gorgeous Tropical Villas In Bali

Related Posts:

Postingan terkait:

Belum ada tanggapan untuk "Open Nature’s Window With This Greenery-Surrounded Vietnamese Home"

Post a Comment

Please drop a word here...

Note: only a member of this blog may post a comment.