Bauhaus Style Home with Interior Glass Walls

A preserved 1930s Bauhaus building in the heart of Tel-Aviv holds an apartment that has been renovated to reflect its former glory. This is the private home of architects Amir Navon and Chen Navon, who worked in collaboration with interior designers Lital Ophir and Ilana Bronfen on the 97sq m space. Also included in the makeover is a 37sq m balcony that overlooks one of the city’s most attractive boulevards, situated next to Israel’s national theater, ‘Habima’. The team collectively acknowledged the importance of honoring the building’s heritage by preserving its classic 1930s Bauhaus architecture, and set about giving the contemporary interior an injection of classic-European style.



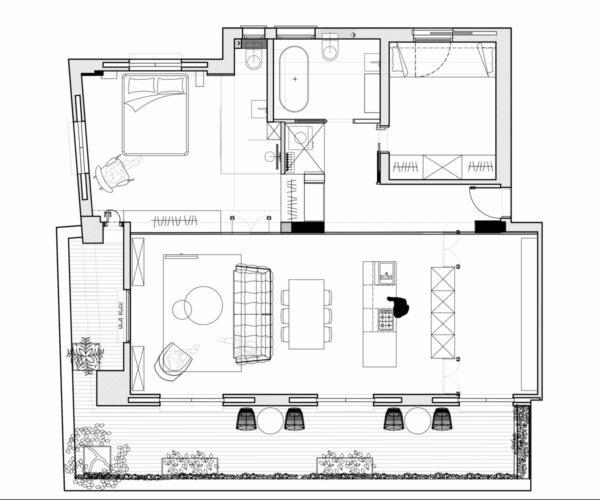
This apartment had previously undergone a renovation a number of years ago with previous tenants but the result was a tight and dull space without natural flow to the outdoor balcony area. The apartment had lost its character and sense of unique style. It was decided that the interior should be kept as a large rectangular space, running parallel to the 4 sliding exit doors out to the Bauhaus balcony, so that natural light could wash in.




A monochrome color pallet of white, grey and black form the basis for some much stronger notes of green and blue, like this Husk sofa by B&B Italia that is facing out to the view over the balcony.




The Slow chair by Vitra, placed near floor to ceiling shelving units, provides a comfortable place to read. An original block wall has been exposed as the backdrop, and a Doshi Levian carpet completes the relaxed look.




The ceiling of the 1930s apartment has been maintained at its original height of 3 meters. Attention is drawn to its ample height with the installation of 4 interesting dining room pendant lights. Miss-matched modern dining chairs add bags of quirky character at the table, which is located in front of the kitchen island just behind the sofa.




The clean and airy feel in the living space comes from implementing a series of freestanding elements, which don’t disrupt the entirety of the space. The conceptual notion of ‘islands’ plus materials Carrera marble stone, steel, glass and herringbone oak equal one cool vibe.




The kitchen is made up of a large green storage cube and a custom designed central kitchen island that is utilised from the front and back. The partially floating white island holds the hob and oven, a baking area and the dishwasher. The green cabinets conceal two refrigerators, a water bar and a coffee machine, plus crockery and larder supplies.




Walkways form naturally between these freestanding volumes, leading the way to bedrooms, bathrooms and the balcony.




The tall green kitchen storage cube is completely surrounded by a glass vitrine that is divided by stone-white colored Belgium profiles, reminiscent of the building’s European style. Doors situated at either side of the green cabinets lead into a playroom.




The green cube offers up some storage on this side too, perfect for storing bins of toys or for organising art and craft supplies. The kid’s decor has been kept simple; only neatly framed artwork hints at the room’s purpose.




Extra natural light flows into the playroom via the interior safety-wired glass wall and doors.




Copper lighting adds warm notes to the bedroom scheme, with a bedroom pendant over one bedside shelf and a unique wall sconce above the other. The shiny accents gleam brightly against a dark headboard wall that has a subtle geometric pattern.




The master bedroom is accessed via Belgium profile glass doors, matching those seen in the open plan living area. The bedroom ‘wall’ is actually a custom designed modular unit. The custom carpentry is both a sitting bench for those entering and exiting the apartment on one side, and a closet accessed from the bedroom on the other side. An en suite bathroom is encased in a glazed volume, standing in full view from the bedroom until a privacy curtain is drawn.




More copper accent pieces can be found decorating the bathroom area. The other elements in here have been kept completely white for a fresh stark look. Even the unique faucet, above a wall hung cube basin, has the snow white treatment.




A small table acts as a handy shelf for soap dispensers, making bathing products easily accessible when under the shower.





The kids’ room is designed to accommodate a young boy and girl. A custom-made bed allows the two to sleep foot-to-foot, with storage drawers underneath.




The childrens’ room is built from concrete walls and measures only 10 sq m. Because of its limited proportions, the floor space was kept as clear as possible to offer a more roomy area for the kids’, which is why we find the majority of the toys stored over in the playroom. Opposite the unique bed, a special closet was also custom designed. This houses a built-in diaper-changing station in the middle.




The bathroom is a minimalistic affair with black faucets and wall storage cabinets.




One solitary succulent planter provides decoration.




Out on the Bauhaus balcony there is enough room for a family picnic table for pleasant al fresco dining.




Two comfortably cushioned seats are spaced along the length of the balcony to enable the homeowners to enjoy the view from different perspectives and at different times of day as the sun moves round.



Recommended Reading: Contemporary Bauhaus Style Home in Haifa

For more regular updates from Home Designing, join us on Facebook.

If you are reading this through e-mail, please consider forwarding this mail to a few of your friends who are into interior design. Come on, you know who they are!

Related Posts:

Postingan terkait:

Belum ada tanggapan untuk "Bauhaus Style Home with Interior Glass Walls"

Post a Comment

Please drop a word here...

Note: only a member of this blog may post a comment.