Luxury Home Loaded With Marble and Modern Style

Moments of marble instill luxurious pattern and depth into this 350 square metre home, designed by Nikita Riasov. Iranian grey stone slabs embody an almost industrial aesthetic with their cool tone, whilst driving the decor scheme high-end. A sprawling open concept living space encompasses a lounge decorated with multiple marble feature walls. A formal dining area links up to a concealed kitchen design with a commanding marble kitchen island and a marble backed bar. In the bedroom we discover a unique headboard design and a modern marble fireplace wall, before an impressive master bathroom ends the tour with a fully clad marble shower area and a beautiful bespoke bathtub.



A modern sectional sofa defines the lounge area in the spacious open concept. The stretched U-shaped sofa arrangement wraps the border of a huge square rug, which sets down a soft silver grey base.




Twin chestnut brown armchairs bring a warming element to the grey lounge, and form a dividing barrier between this area and the neighbouring dining space.




Double aspect windows flood the large home interior with natural daylight and floor-to-ceiling garden views.




A marble coffee table and a dark wood counterpart layer up pattern and texture at the heart of the modern lounge arrangement. A black and white throw takes the marble table’s striking colour combination to the sofa.




Iranian grey stone engulfs the TV wall, and creates luxe backing for a tower of bespoke bookshelves at one side.




A floating tv stand crosses the grey marble TV wall, and smoothly interlinks with the custom made shelving unit.




At the back of the lounge area, another grey stone feature wall mirrors the other. This time a piece of monochrome artwork takes pride of place against the beautiful backdrop.




Huge windows continue to line the length of the open layout, flowing directly into the kitchen diner.




A fascinating linear suspension light design dominates the dining space, dwarfing the size of the rectangle dining table with its length and drop.




Russet dining chairs add heat to the eating area. A pale rectangle rug contrasts lightly with the chair upholstery.




A modern fruit bowl curls up as though magnetised to the oversized suspension light.




Modern bar stools line up at the kitchen island behind to offer a more casual spot for breakfast or coffee.




The commanding kitchen island is a spectacular angular cut of marble spliced with a wooden breakfast bar. An integrated sink beds down within the marble countertop.




The remainder of the kitchen, and a wet bar by the dining area, are concealed from plain view behind smooth wood cabinets. When opened up, the wet bar reveals a luxe marble backing behind illuminated liquor shelves. Chilled wine storage fits beneath the countertop.




Retractable doors disappear into the sides of the kitchen installation, giving easy access to integrated appliances.




With cabinet doors fully closed, the kitchen run resembles attractive wood wall panelling.




When revealed, the kitchen wall displays a marble accent and illuminated shelves that perfectly match the wet bar.




As we move around the opposite side of the kitchen wall, we come to the home entryway. On this side, the partition wall of cabinetry becomes hallway storage closets.




The dining room wet bar creates its own partition wall between the living room and the private quarters of the house, which contains the bedrooms and bathrooms.




Back in the front entryway, a sliver of the garden slips through a full height window.




A red ottoman creates a bright pop of contrast with the green vista, and creates a warm welcoming moment in the spacious foyer. More closets flank the sides of the large entryway design.




One marble moment threads behind a set of custom made shelves.




A built-in bookcase gets the luxe marble treatment too.




The luxury bedroom is a vast space, where the rich wood tone and marble meld continues with finesse.




A unique marble headboard design brings main focus to the bed. Multi-light pendants illuminate its fine finish.




Optical artwork above the headboard creates the illusion of movement – which produces a really cool effect when you scroll. Kind of reminds us of that pulsating Sonos logo.




Another op art piece creates chromatic tension over a modern fireplace. A wall of Iranian grey stone cools the flame.




A light stone hearth creates contrast with the grey marble feature wall.




The bedroom chair, matching footstool and modern floor lamp make a reading area in the window.




A white marble vanity floats upon a mirrored wall. An ivory upholstered pouf complements the light stone.




On the opposite side of the bedroom vanity wall, we find a chic walk in wardrobe with softly backlit glass fronted units and a built-in bench.




The master bathroom is a huge layout. An understated vanity unit splits the room down the middle, with a large shower enclosure located on one side and the bathtub on the other.




The WC is situated privately behind the vanity wall.




Sliding glass doors links the bedroom’s walk in closet to the ensuite, but it can also be accessed directly from the outer hallway.




The bespoke marble bathtub is positioned grandly atop a matching marble platform.




A towel heater warms the bathroom linens.




Grey marble clads the WC in its entirety.




The generously sized shower area receives a matching seamless marble treatment.




Interior design mood board.




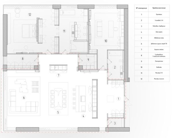
Floor plan, with private areas shaded grey and common areas highlighted white.


Recommended Reading: 
51 Luxury Living Rooms
51 Luscious Luxury Dining Rooms
51 Luxury Kitchens
51 Luxury Bedrooms
50 Luxury Bathrooms
Luxury Kids’ Room

The post Luxury Home Loaded With Marble and Modern Style first appeared on Interior Design Ideas.

Related Posts:

Postingan terkait:

Belum ada tanggapan untuk "Luxury Home Loaded With Marble and Modern Style"

Post a Comment

Please drop a word here...

Note: only a member of this blog may post a comment.